
Post-Production Facility·Burbank, CA
Signature Post Burbank
Overview
Project at a Glance
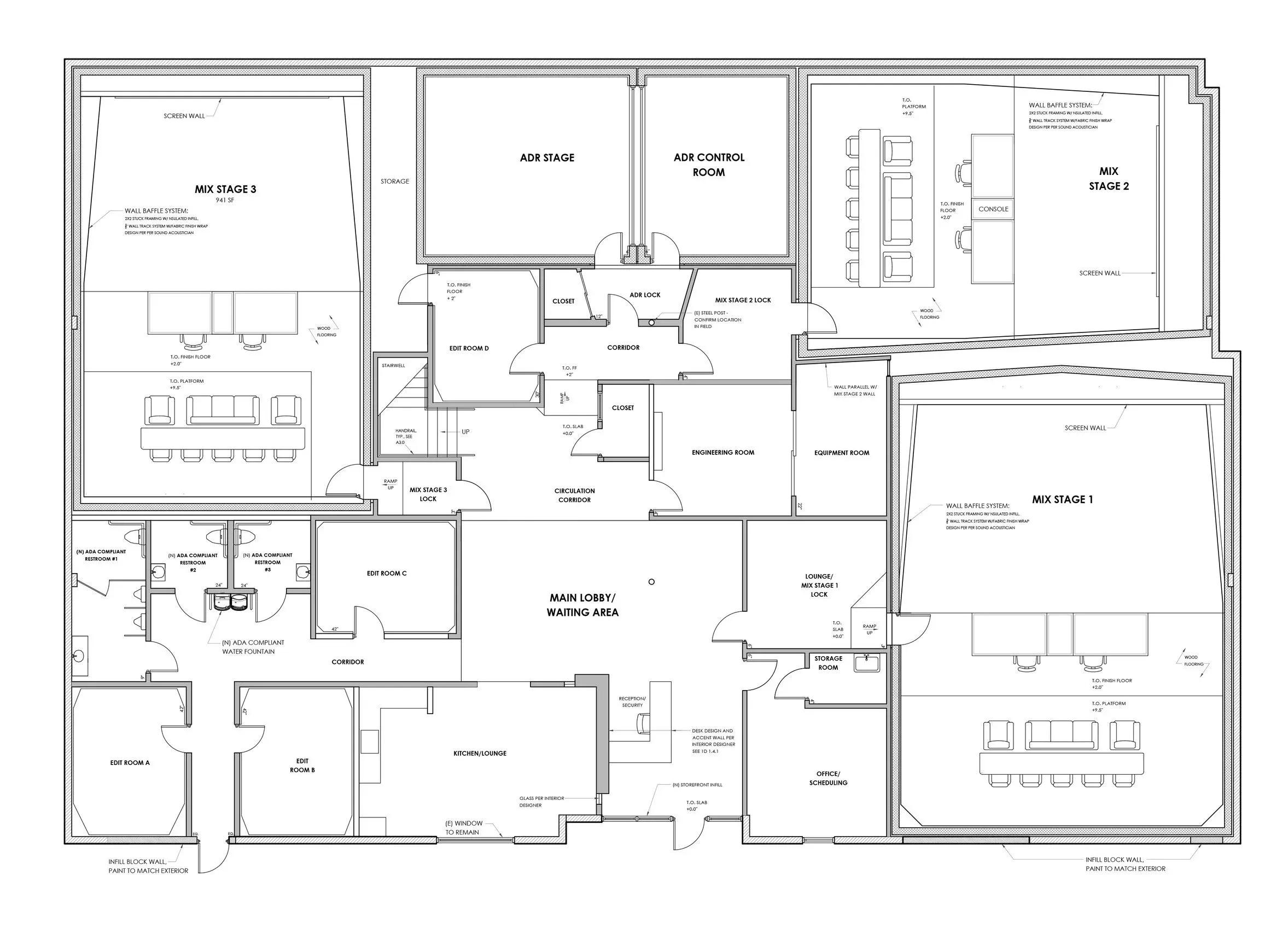
Full service commercial post production facility with 2nd story office addition.
Project TypePost-Production Facility
Size8,800 sq ft
Program3 mix stages, 1 ADR stage and control room, 3 edit bays, machine room, offices, kitchen, lobby, ADA accessible
LocationBurbank, CA

Services Provided
DesignAcousticsConstruction Administration
Results
Project OutcomesMeasuring success
The completed facility exceeded all expectations. Since completion, the studio has hosted sessions for multiple platinum-selling albums.
01
8,800
sq ft
02
3
Mix Stages
03
1
ADR Stage
Team
Project Team
Architect
Scott DeLoache, AIA, LEED GA, NCARB
Contractor
Kaiser Comm Construction
Acoustician
Ken Goerres
Interior Designer
Lisa Slayman, ASID IIDA
Interior Designer
Suzanne Donegan
Stage/Office Furnishings
Liz Kay
Softwall Systems
The CWI Group
Structural Engineer
Jose Luis Martinez, CE
Gallery
Project GalleryVisual journey through the space

Mix Stage 1 front view with console
.webp&w=3840&q=75)
Mix Stage 1 - Rear Center

Mix Stage 2 - Screen Wall

Mix Stage 2 - Seating

Mix Stage 2

Mix Stage 1 - Corner Detail

Mix Stage 1 - Mid Rear

Mix Stage 1 - Rear Detail

Mix Stage 1 - Center View

Lobby

Kitchen

Exterior

Floor Plan
Next Steps
Ready for your own project?Let's create something extraordinary
Every great studio starts with a conversation. Share your vision and we'll help bring it to life.
Free consultation
Custom design solutions
Turnkey delivery